REALESTATE 不動産情報
SCROLL DOWN
けやき台4丁目【ご成約済】
      ※ご成約済です
お問合せいただきありがとうございました
けやき台リフォーム中古住宅
「大分市中古住宅で始める子育て新生活応援事業」最大45万円補助対象物件
JIO既存住宅かし保険加入済・安心の2年保証付
太陽光発電システム3kW付!
光熱費がお得なオール電化住宅です。
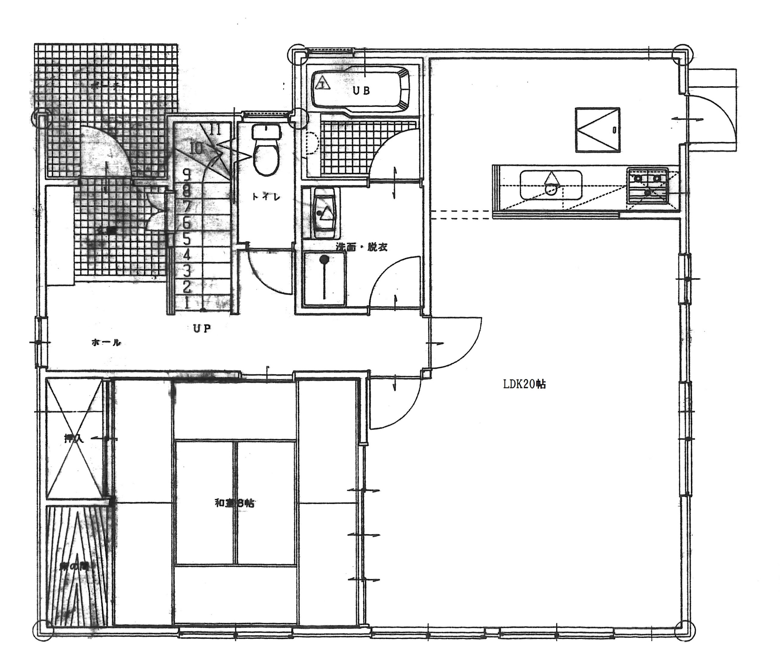
間取りは5SLDK♪1階は20帖のLDK+8帖の和室
2階は4部屋+収納スペースがある広々とした間取り
リフォーム箇所
◆水周りリフォーム・IHシステムキッチン(食器洗い乾燥機付)洗面化粧台、トイレ新品に交換・ユニットバスコーティング◆クロス全面張替え・クッションフロア張替え・襖、障子、網戸張替え◆畳替え◆外壁・屋根塗装◆白蟻調査済
不動産情報
- 所在地
 - 
                      
大分市けやき台4丁目11-5
 
- 間取り
 - 
                      
5SLDK
 
- 土地面積
 - 
                      
220.32㎡(66.64坪)
 
- 建物面積
 - 
                      
140.77㎡(42.58坪)
 
- 構造
 - 
                      
軽量鉄骨造スレート葺2階建
 
- 築年月
 - 
                      
平成12年3月
 
- 取引態様
 - 
                      
売主
 
- 備考
 
            
          



























