REALESTATE 不動産情報
SCROLL DOWN
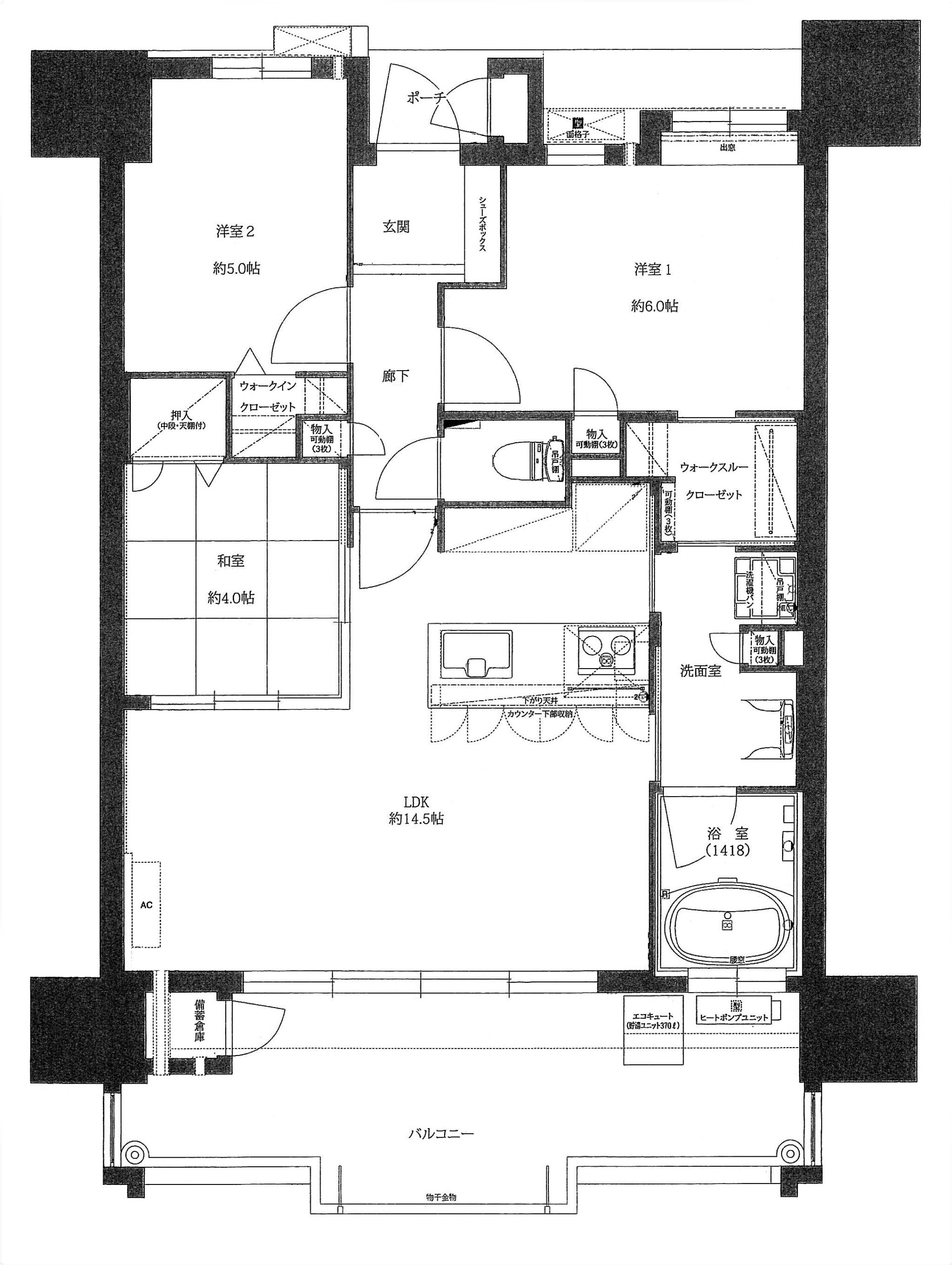
エイルマンション大分中央【ご成約済】
※ご成約済です
お問合せいただきありがとうございました
人気のエイルマンションシリーズ・築7年の築浅物件!大分駅まで徒歩約10分という好立地。
家事導線の良い3LDK・洗面室の隣にウォークスルークローゼットがあり、乾いた洗濯物をつるして、さっと収納できる便利な間取りです。
キッチンは、フラットなオープンキッチンでダイニングからリビング、和室までが見渡せる対面式なので、家事をしながらご家族の様子が見渡せて安心です。
・オール電化仕様、省エネ給湯器
・瑕疵保険による保証付
・ペット相談可(小型犬・猫)
・駐車場1台確保(3500円/月)
・広々バルコニー
所有者居住中の為内覧のお問合せは余裕を持ってご連絡下さい
不動産情報
- 所在地
-
大分市新町8-10 エイルマンション中央3階
- 間取り
-
3LDL+衣類収納クローゼット
- 専有面積
-
壁芯 65.35㎡
- 階建/階
-
15階建 地下1階/3階部分
- 管理費
-
6600円/月
- 修繕積立金
-
5400円/月
- 建物構造
-
RC
- 築年月
-
平成28年8月
- 現況
-
所有者居住中
- 取引態様
-
専任媒介
- 備考




















