REALESTATE 不動産情報
SCROLL DOWN
富士見が丘東 売土地【ご成約済】
※ご成約済です
お問合せいただきありがとうございました
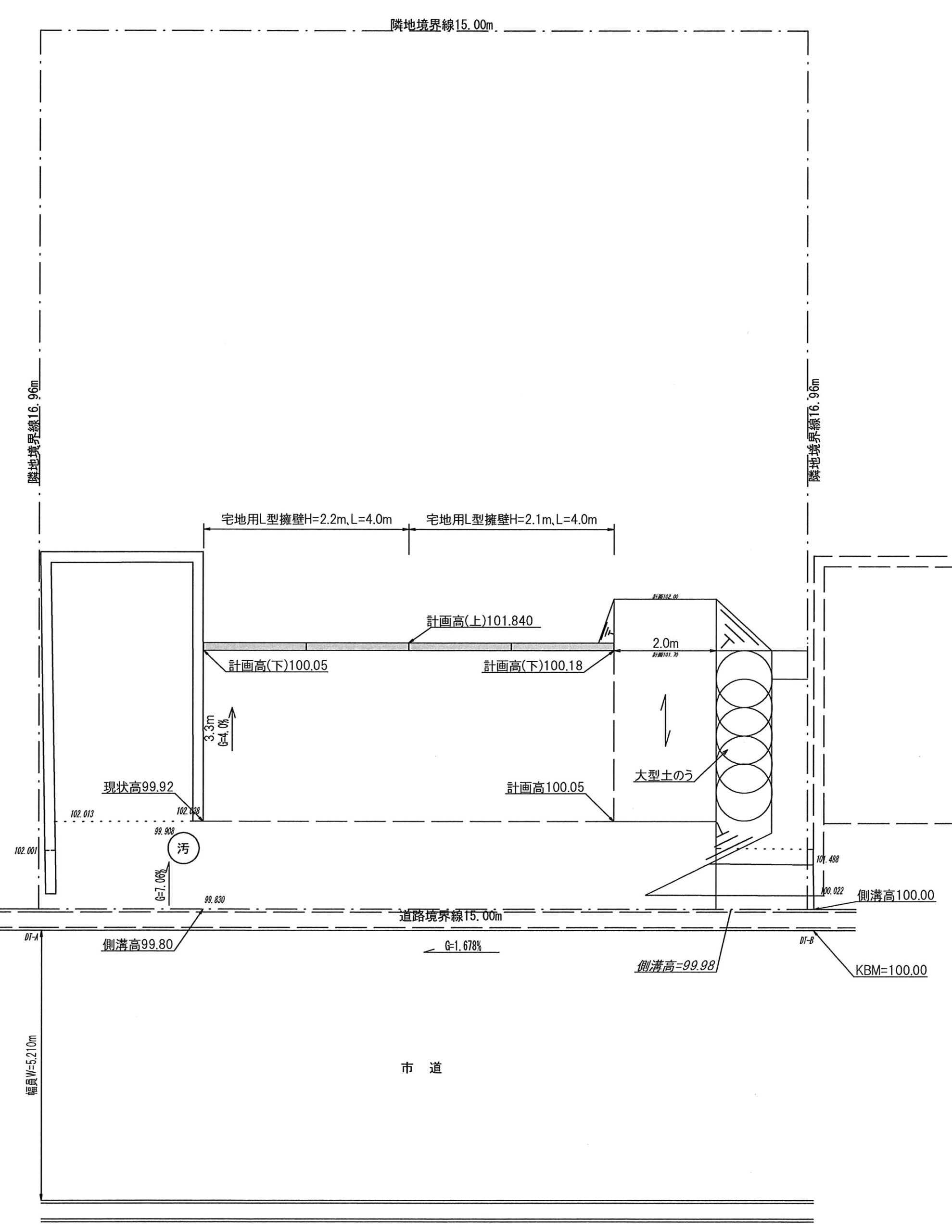
富士見が丘に土地を1区画販売します!
弊社の土木部にて造成工事済★宅地造成用のL型擁壁を使用し施工しております。トキハインダストリー富士見ヶ丘店まで徒歩約3分♪スーパー・銀行・小学校等が徒歩圏内に揃う利便性の良い住宅街です。高台に位置し浸水や土砂災害の心配も少なく安心◎駐車場は4台駐車可能です。建築条件はありませんのでお好きな建築メーカーさんでご検討ください。
‣横瀬小学校・・・約660m/徒歩約9分
‣富士見が丘郵便局・・・約170m/徒歩約3分
‣トキハインダストリー・・・約170m/徒歩約3分
販売価格:1180万円
不動産情報
- 所在地
-
大分市富士見が丘東5丁目11-15
- 最適用途
-
住宅用地
- 土地面積
-
254.36㎡(76.94坪)
- 地目
-
宅地
- 都市計画
-
市街化区域
- 用途地域
-
第一種低層住居専用地域
- 建蔽率
-
50%
- 容積率
-
100%
- 現況
-
更地
- 接道状況
-
北6.0m 公道 接面15.0m
- 取引態様
-
売主【売主物件の為仲介手数料は無料です】
- 備考







