REALESTATE 不動産情報
SCROLL DOWN
常行【ご成約済】
※ご成約済です
お問合せいただきありがとうございました
常行リフォーム中古住宅
★R4.8月リフォーム工事完成★
「大分市中古住宅で始める子育て新生活応援事業」最大45万円補助対象物件
JIO既存住宅かし保険加入済で安心の2年保証付です!
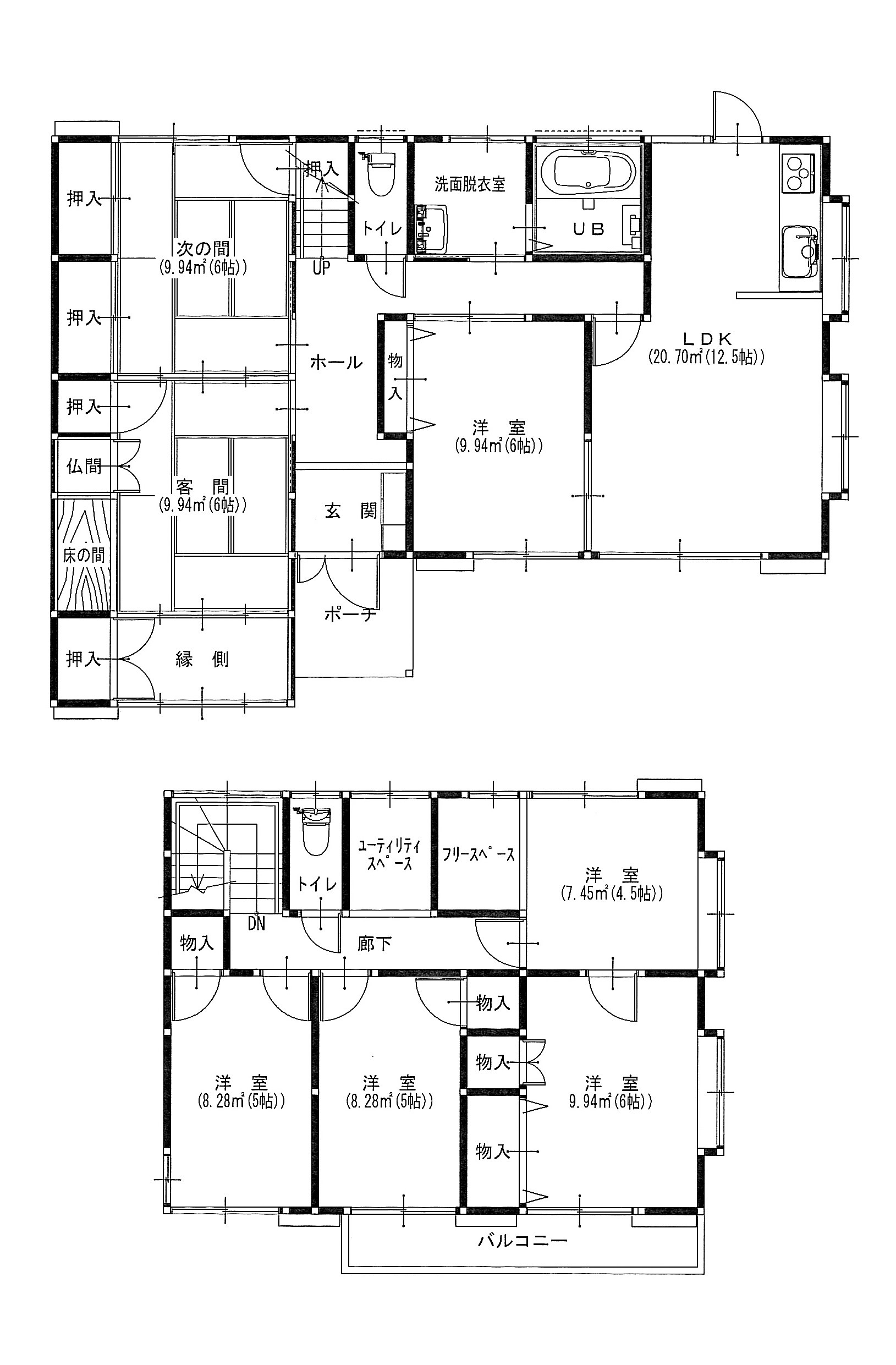
水周り設備は全て新品に交換・屋根外壁塗装・外構工事済のリフォーム住宅です!間取りは広々7LDK+フリースペースもあり収納力抜群♪駐車場も増設工事を行い3~4台駐車可能です。
リフォーム箇所
◆水周りリフォーム・システムキッチン※ガス(食器洗い乾燥機付)システムバス、洗面化粧台、トイレ2か所新品に交換◆クロス全面・クッションフロア・フロアタイル・襖、障子、網戸張替え◆畳替え◆屋根・外壁塗装◆モニターホン新設◆白蟻調査◆外構工事◆駐車場増設工事◆下水道切替工事
不動産情報
- 所在地
-
大分市大字常行36番地の6
- 間取り
-
7LDK+フリースペース
- 土地面積
-
200.60㎡(60.68坪)
- 建物面積
-
135.78㎡(41.07坪)
- 構造
-
木造セメント瓦葺2階建
- 築年月
-
平成6年3月
- 取引態様
-
売主
- 備考






















